※1名=1〜3坪が目安
新規登録・ログイン

ハイグレードオフィスならPRESTAGE OFFICE

オフィスを探す

※1名=1〜3坪が目安
※1名=1〜3坪が目安
オフィスを探す

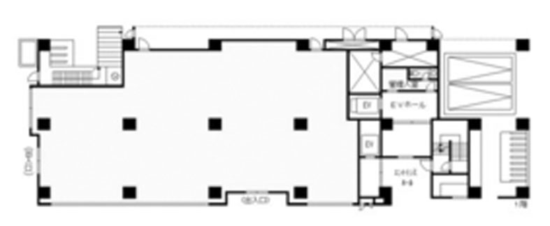
京王アンフィール高幡 302階 68.59㎡

  • 外観 0
  • 外観 0
グレード
  • Prestige
  • Casual
  • 賃貸オフィス
住所
東京都 日野市 高幡 1009-4 MAPを開く
最寄り駅
京王線 高幡不動駅 徒歩2分
竣工年
2008 年
所在階数
302階
面積
68.59㎡
入居時期
6ヶ月以内
月額賃料
相談 その他(東京都) の相場  6,000 〜 18,000 円/坪
ビル設備
  • 新耐震

詳細情報

建物名
京王アンフィール高幡
グレード
Casual
住所
東京都 日野市 高幡 1009-4
竣工年
2008 年
基準階面積
確認中
月額賃料
相談
面積
20.75坪(68.59㎡)
敷金
12ヶ月分
礼金
なし
入居時期
6ヶ月以内
オフィス名
京王アンフィール高幡 302階 68.59㎡
オフィス種別
賃貸オフィス
最寄駅
京王線 高幡不動 駅 徒歩2分
建物規模
地下1〜地上8階
利用人数
10人

設備・条件

建物設備

  • 耐震性能
    • 新耐震
    • 免震
    • 制震
  • 空調方式
    • 個別空調
  • 非常用発電機
    なし
  • 有人管理
    なし
  • 機械警備
    なし
  • OAフロア
    なし
  • 家具付
    なし
  • 会議室付き
    なし
  • 駐輪場
    なし
  • 駐車場
    なし
  • 喫煙所
    なし
  • 屋上庭園・テラス付
    なし
  • 眺望
    なし

アクセス

京王アンフィール高幡のオフィス一覧

  • 現在募集中の区画
  • 契約済み
  • 階数
  • 専有面積
  • 許容人数
  • 月額費用
  • 敷金
  • 入居可能時期
京王アンフィール高幡 302階 68.59㎡
  • 賃貸オフィス
  • Casual
京王アンフィール高幡 302階 68.59㎡
  • 階数
  • 専有面積
  • 許容人数
  • 月額費用
  • 敷金
  • 入居可能時期
京王アンフィール高幡 3階 68.59㎡
  • 賃貸オフィス
  • Casual
京王アンフィール高幡 3階 68.59㎡

似た条件のオフィス情報