※1名=1〜3坪が目安
新規登録・ログイン

ハイグレードオフィスならPRESTAGE OFFICE

オフィスを探す

※1名=1〜3坪が目安
※1名=1〜3坪が目安
オフィスを探す

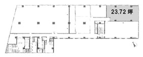
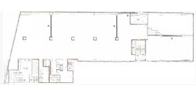
塚本素山ビルディング 45414階 110.48㎡

  • NO IMAGE
  • NO IMAGE
グレード
  • Prestige
  • Casual
  • 賃貸オフィス
住所
東京都 中央区 銀座 4-2-15 MAPを開く
最寄り駅
東京メトロ丸ノ内線 銀座駅 徒歩1分
JR山手線 有楽町駅 徒歩4分
竣工年
1985 年
所在階数
45414階
面積
110.48㎡
入居時期
即入居可
月額賃料
相談 銀座 の相場  22,000 〜 30,000 円/坪
ビル設備
  • 新耐震
  • 有人管理
  • 機械警備

詳細情報

建物名
塚本素山ビルディング
グレード
Casual
住所
東京都 中央区 銀座 4-2-15
竣工年
1985 年
基準階面積
確認中
エレベーター
2基
月額賃料
相談
面積
33.42坪(110.48㎡)
敷金
12ヶ月分
礼金
なし
入居時期
即入居可
オフィス名
塚本素山ビルディング 45414階 110.48㎡
オフィス種別
賃貸オフィス
最寄駅
東京メトロ丸ノ内線 銀座 駅 徒歩1分
JR山手線 有楽町 駅 徒歩4分
建物規模
地下3〜地上9階
利用人数
16人

設備・条件

建物設備

  • 耐震性能
    • 新耐震
    • 免震
    • 制震
  • 空調方式
    • 個別空調
  • 非常用発電機
    なし
  • 有人管理
    なし
  • 機械警備
    なし
  • OAフロア
    なし
  • 家具付
    なし
  • 会議室付き
    なし
  • 駐輪場
    なし
  • 駐車場
    なし
  • 喫煙所
    なし
  • 屋上庭園・テラス付
    なし
  • 眺望
    なし

アクセス

塚本素山ビルディングのオフィス一覧

  • 現在募集中の区画
  • 契約済み
  • 階数
  • 専有面積
  • 許容人数
  • 月額費用
  • 敷金
  • 入居可能時期
塚本素山ビルディング 5階 125.62㎡
  • 賃貸オフィス
  • Casual
塚本素山ビルディング 5階 125.62㎡
塚本素山ビルディング 45414階 110.48㎡
  • 賃貸オフィス
  • Casual
塚本素山ビルディング 45414階 110.48㎡
  • 階数
  • 専有面積
  • 許容人数
  • 月額費用
  • 敷金
  • 入居可能時期
塚本素山ビルディング 5階 252.86㎡
  • 賃貸オフィス
  • Casual
塚本素山ビルディング 5階 252.86㎡
塚本素山ビルディング 2階 511.67㎡
  • 賃貸オフィス
  • Casual
塚本素山ビルディング 2階 511.67㎡
塚本素山ビルディング 3階 615.93㎡
  • 賃貸オフィス
  • Casual
塚本素山ビルディング 3階 615.93㎡
塚本素山ビルディング 6階 78.41㎡
  • 賃貸オフィス
  • Casual
塚本素山ビルディング 6階 78.41㎡
塚本素山ビルディング 6階 92.56㎡
  • 賃貸オフィス
  • Casual
塚本素山ビルディング 6階 92.56㎡

似た条件のオフィス情報